ACHIEVEMENTS

施工事例集
すべて
調剤薬局内装工事
狭小調剤薬局
調剤薬局相談カウンター
調剤薬局OTC
カウンター改修工事
クリニック
リフォーム
在宅調剤薬局
その他

狭小調剤薬局

間口が狭い空間でも薬局を作ることができます。

img_9250.jpg img_9243.jpg img_9233.jpg img_9278.jpg img_9261.jpg img_9220.jpg img_9226.jpg img_2752.jpg img_2760.jpg
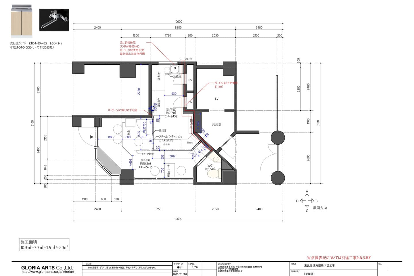
恵比寿漢方薬局様(東京都渋谷区) Details LinkIcon
 
設計施工(内装・カウンター・サイン)
2025年2月に竣工。シックな現代の雰囲気と漢方の歴史を織り交ぜた、落ち着きのある内装に仕上げました。調剤風景もみることができ、安心感のある薬局となりました。


 
恵比寿漢方薬局様 平面図 約20㎡

img_1675.jpg img_1653.jpg img_9369.jpg img_1723.jpg img_1694.jpg img_1717.jpg
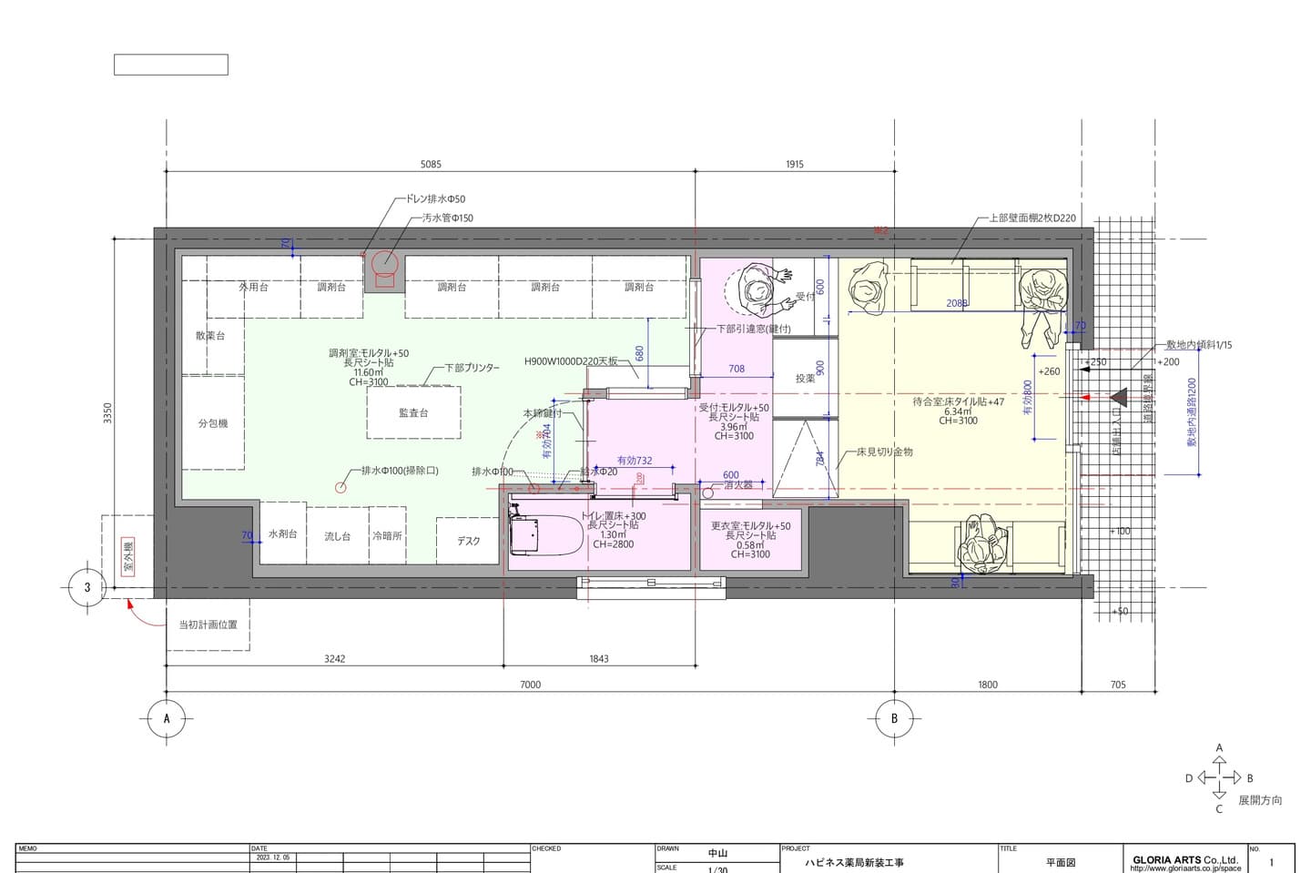
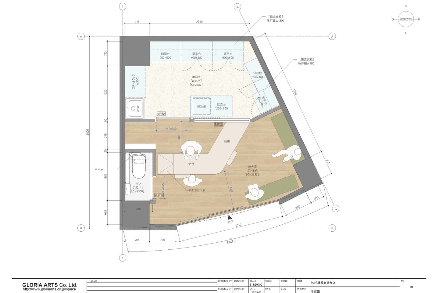
たから薬局様(東京都練馬区) Details LinkIcon
 
設計施工(内装・カウンター・サイン)
2025年5月に竣工。木を多用したナチュラルモダンをコンセプトに、温かみのある空間に仕上げました。カウンター側面には斜めの木目を使用し、受付が空間のアクセントになるようなデザインを取り入れました。


 
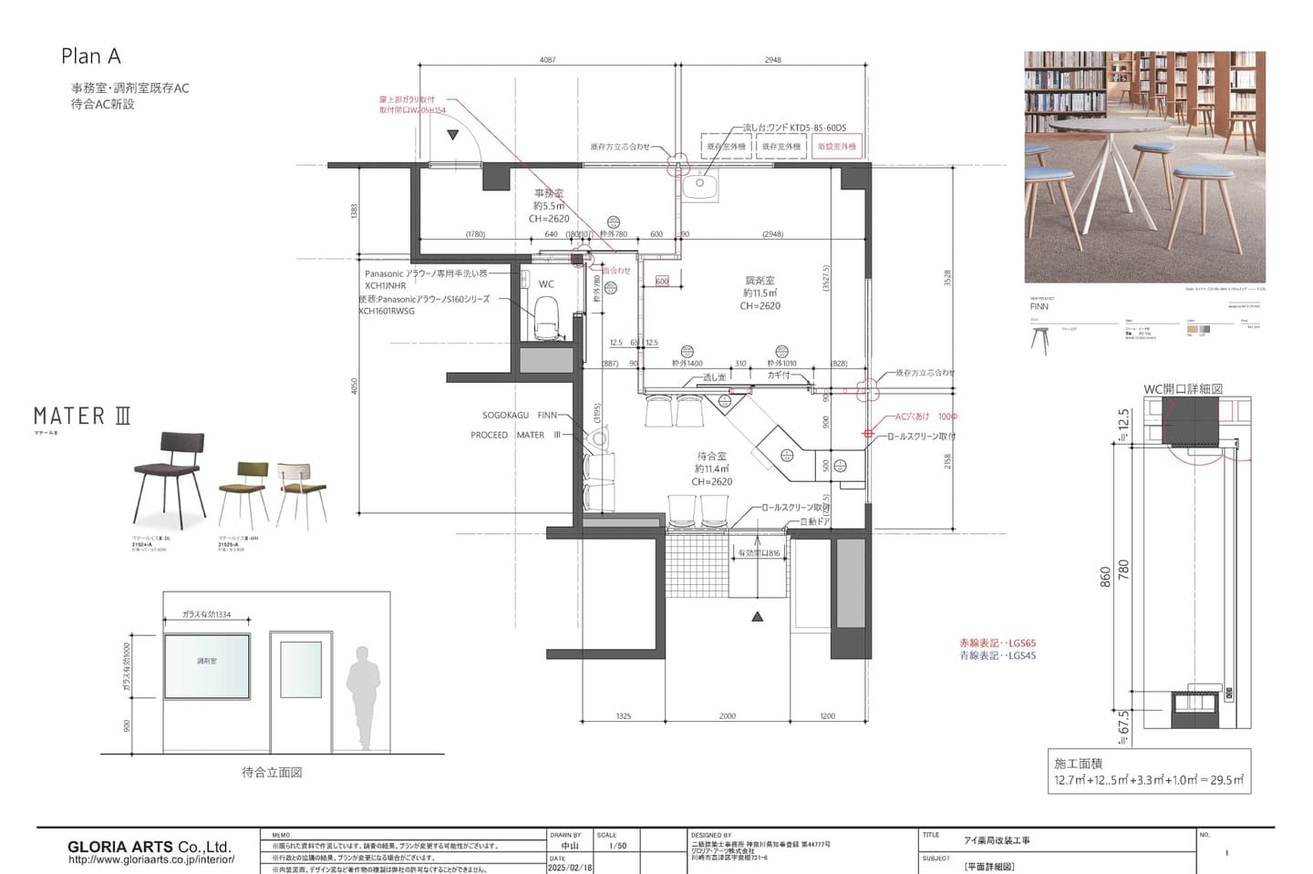
アイ調剤薬局様 平面図 約30㎡

img_1214.jpg img_1211.jpg img_1210.jpg img_1205.jpg img_1194.jpg img_1230.jpg img_1227.jpg
アイ調剤薬局様(東京都新宿区) Details LinkIcon
 
設計施工(内装・カウンター・サイン)
2025年2月に竣工。モダンカフェスタイルをコンセプトに、落ち着きのあるスタイリッシュな内装に仕上げました。天井には木目クロスを使用し、温かみと奥行を感じられる空間になりました。


 
アイ調剤薬局様 平面図 約30㎡

img20241114110205106615.jpg img20241114110208805402.jpg img20241114110204790296.jpg img20241114110209091907.jpg img20241114110204873992.jpg img20241114110209458386.jpg img20241114110204665101.jpg
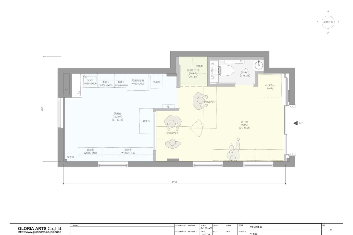
やどりぎ薬局様(東京都品川区) Details LinkIcon
 
設計施工(内装・サイン)
2024年8月に竣工。和モダンをコンセプトに、天井高を活かした、親しみやすい内装に仕上げました。化粧柱・付鴨居がとても良いアクセントになっています。


 
やどりぎ薬局様 平面図 約32㎡

img_7412.jpg img_7423.jpg img_7431.jpg img_7419.jpg img_7404.jpg img_7445.jpg img_7435.jpg
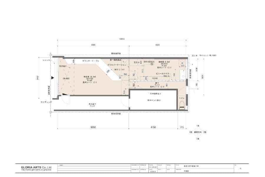
ハピネス薬局様(港区麻布十番) Details LinkIcon
 
設計施工(内装・カウンター・サイン)
2024年1月に竣工。全体で約9坪と限られた広さの中で、天井を高くし、鏡などのアイテムを使うことで、開放的な高級感のある空間になりました。


 
ハピネス薬局様 平面図 約26㎡

img_6391.jpg NEW img_6383.jpg img_6333.jpg img_6183.jpg img_6281.jpg img_6403.jpg
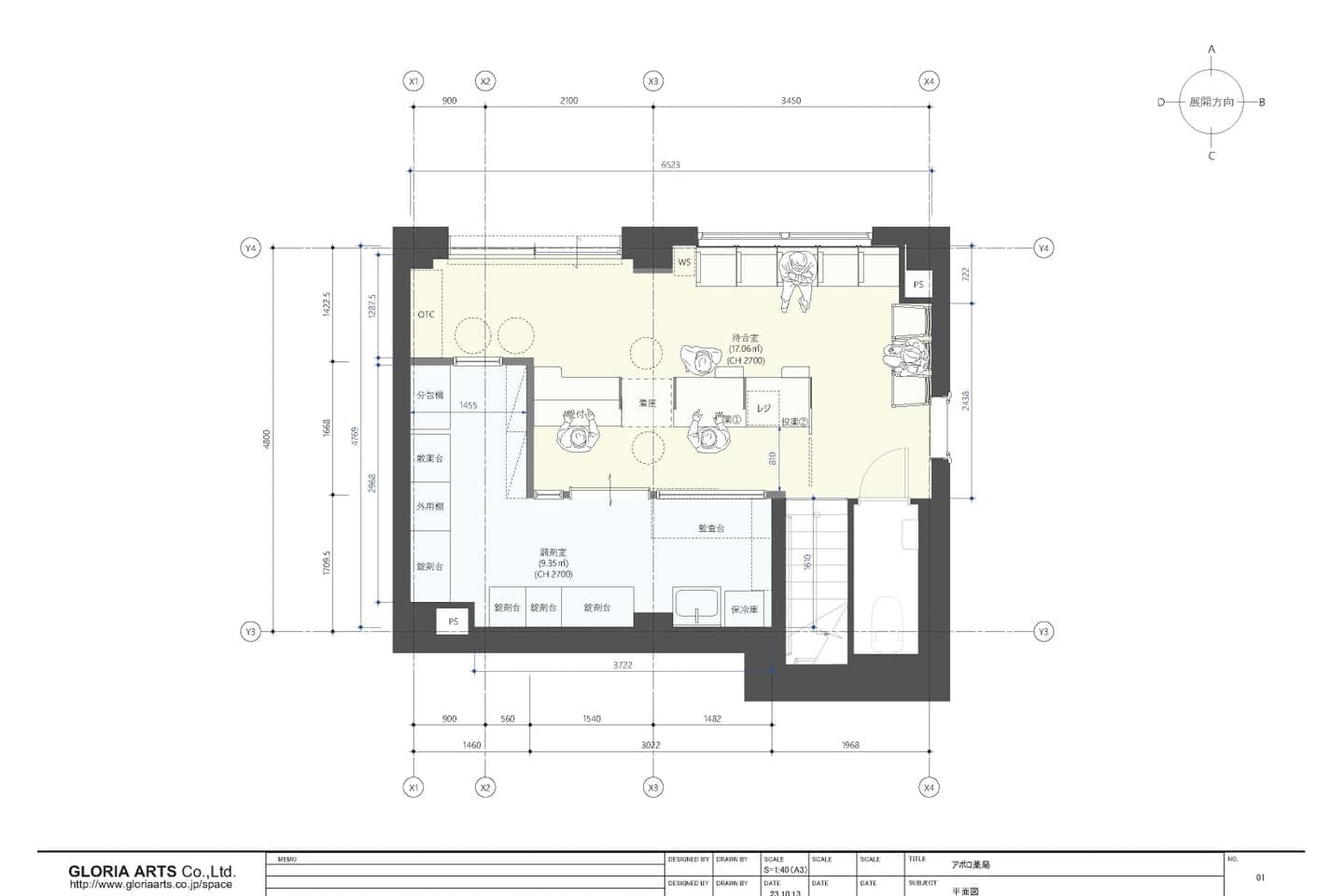
アポロ薬局様(中央区月島) Details LinkIcon
 
設計施工(内装・カウンター・サイン)
2023年11月に竣工。白を基調とし、木や石の素材をアクセントとすることで、清潔感とぬくもりを感じられる空間にしました。
 


 
アポロ薬局様 平面図  約27㎡
 

img_2792.jpg img_2744.jpg img_2524.jpg img_2518.jpg img_2798.jpg img_2707.jpg img_2701.jpg img_2820.jpg img_2839.jpg
クローバー薬局様(江東区清澄白河) Details LinkIcon

設計施工(内装・カウンター・サイン)  
2023年3月に竣工。間口が狭く、レイアウトが限られたなかで、カウンター形状や間仕切りを検討し、落ち着きのあるシックな内装ができました。

 
クローバー薬局様 平面図 約20㎡
 

img20230327142927284340.jpg img20230327142927280078.jpg img20230327142920756632.jpg img20230327142920749555.jpg img20230327142926386085.jpg img20230327142920853267.jpg
薬局うさぎや様(杉並区高円寺) Details LinkIcon

設計施工(内装・調剤室・カウンター・サイン)
2022年9月に竣工。施主様のご要望だったカフェ風の内装に仕上げ、温かく落ち着いた雰囲気の薬局に。

薬局うさぎや様 平面図 約32㎡